Категории

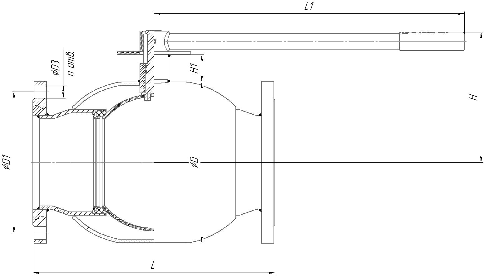
Кран шаровой полнопроходной 393 с фланцем для установки привода

Кран шаровой полнопроходной 393 с фланцем для установки привода

Характеристики

Макс. температура (Т) °С.: до +80 °С

Мин. температура (Т) °С.: до -40 °С (исп. У), до -60 °С (исп. ХЛ)

Класс герметичности: Класс «А» ГОСТ 9544-2015

Срок службы: Не менее 40 лет.

Гарантийный срок: 3 года или не менее 10 000 циклов

Тип присоединения: 

фланцевый/фланцевый 

Рабочая среда:

Природный газ, сжиженный  углеводородный газ и другие газообразные среды, неагрессивные для материалов деталей крана.

Модификации

Артикул DN PN L L1 H H1 D D1 D2 D3 N OF HOLES Вес
39320100 100 16 350 525 187 50 180 180 100 18 8 21,70
39320125 125 16 380 525 203 48 219 210 125 18 8 33,68
39320150 150 16 410 525 228 45 273 240 148 22 8 39,75
39320200 200 16 530 1030 273 51 351 395 200 22 12 76,75
39320250 250 16 750 - 414 101 426 355 240 26 12 145,00
39320300 300 16 750 - 464 100 530 410 300 26 12 270,00
39320400 400 16 990 - 560 103 630 525 390 30 16 615,00